Unique Modern/ Traditional Bathroom in Twickenham

A unique Twickenham transformation that masterfully blends modern and traditional elements to create a bespoke, character-filled sanctuary.

Budget Range

£12501 - £15000

Project Year

2024

Size

Large (6-10m²)

Location

United Kingdom

Room type

Bathroom

Style

Modern Traditional, Industrial

Client brief

The client sought a "modern-traditional" mix that departed from the expected. The vision was anchored by a specific vanity unit the client wished to upcycle, which set the tone for the entire project. Key requirements included a striking feature bath positioned against a bare brick backdrop and a spacious, open shower area that balanced rugged textures with elegant finishes.

The process

This project was a highly collaborative journey driven by the client’s dedication to detail. To find the perfect tonal match for the tin bath, the client made several visits to our showrooms to compare finishes in different lights. We worked to integrate the client’s own upcycled furniture into a professional design specification, ensuring the vintage character of the piece functioned seamlessly within a high-performance, modern layout.

What we did

Eclectic Material Pairing: Specified an open shower and a statement tin bath against a bare brick wall, creating a sophisticated "industrial-meets-period" aesthetic.

Premium German Engineering: Sourced Axor taps in the elegant Montrose style, selected for their world-renowned durability and timeless design.

Bespoke Integration: Designed the layout specifically to accommodate and highlight the client’s upcycled vanity unit, making it a functional focal point of the room.

Custom Metal Finishes: Guided the selection of specific metallic tones to complement the unique finish of the tin bath, ensuring a cohesive look across all brassware.

Timeless Layout Planning: Created a spacious, contemporary flow that honours the traditional roots of the property while providing all the comforts of a modern luxury suite.
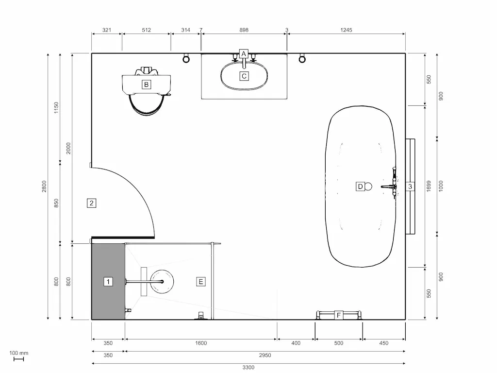
Floorplan

Floor Plan
Walk Through View

3D Design Tour
360° View - Unique Modern/ Traditional Bathroom in Twickenham
360° Project Photo

Similar projects

View related bathroom designs inspired by similar styles, materials, and layouts crafted to deliver both elegance and everyday practicality.

A Sleek Spa Retreat with Bespoke Steam Enclosure

A breathtaking master bathroom transformation that merges the elegance of a luxury hotel with a restorative spa atmosphe...

Find out more

A Stylish High-End Master Ensuite

A stunning master ensuite makeover that replaces an old, cluttered layout with a fresh, open space. By using dark charco...

Find out more

Relaxing Bathroom Retreat in Berkshire

A gorgeous and modern shower room within the Seven Stars Barn development, where a "clutter-free" philosophy and bespoke...

Find out more

What our customers say

Bathroom Design Consultation

Begin your bathroom design journey

Take the first step toward your dream bathroom with our design experts by your side.

Or call us directly at 020 8619 8899