A Stylish High-End Master Ensuite

A stunning master ensuite makeover that replaces an old, cluttered layout with a fresh, open space. By using dark charcoal walls, bright white furniture, and warm brass accents, we created a room that...

A stunning master ensuite makeover that replaces an old, cluttered layout with a fresh, open space. By using dark charcoal walls, bright white furniture, and warm brass accents, we created a room that feels both high-end and incredibly welcoming

Budget Range

£7501 - £10000

Project Year

2026

Size

Large (6-10m²)

Location

United Kingdom

Room type

En Suite

Style

Modern, Luxury

Client brief

The client has lived in their home for five years and wanted to completely update a master ensuite that felt dated and cramped. The main goal was to remove the bulky built-in bathtub to make the room feel much larger and more open. They requested a "his and hers" double sink for better daily use and wanted the room to have a real "wow factor" with plenty of storage and a large, luxury shower.

The process

Our designer focused on making the most of the room. By taking out the central bathtub, we were able to change the layout to focus on a large, easy-to-access walk-in shower. To make the room feel as big as possible, we used "floating" furniture, basins and a toilet that are attached to the wall rather than sitting on the floor, which keeps the floor space clear and easy to clean. We also added clever lighting, including a glowing recessed shelf, to make the dark walls feel warm and cozy

What we did

Swapped the Bath for a Shower: We removed the old bathtub to create a large, walk-in wet room with a bespoke 10mm glass screen.

Added a Feature Wall: We used large, dark charcoal tiles on one wall to create a bold look that makes the room feel deep and expensive.

Installed a Double Sink: We combined two white vanity units with a single large double basin, giving the couple their own space and plenty of drawer storage.

Used Space-Saving Fixtures: A wall-hung toilet was installed to keep the floor clear and maintain a modern, uncluttered look.

Integrated Mood Lighting: We added an illuminated mirror cabinet and a built-in glowing shelf to create a relaxing atmosphere.

Chose Brushed Brass Accents: All the taps, the shower head, and even the towel rail are finished in brushed brass, adding a warm, gold-like touch to the room.

Selected Modern Tiling: We used large matte white floor tiles with light grey grout to keep the space feeling bright and clean.
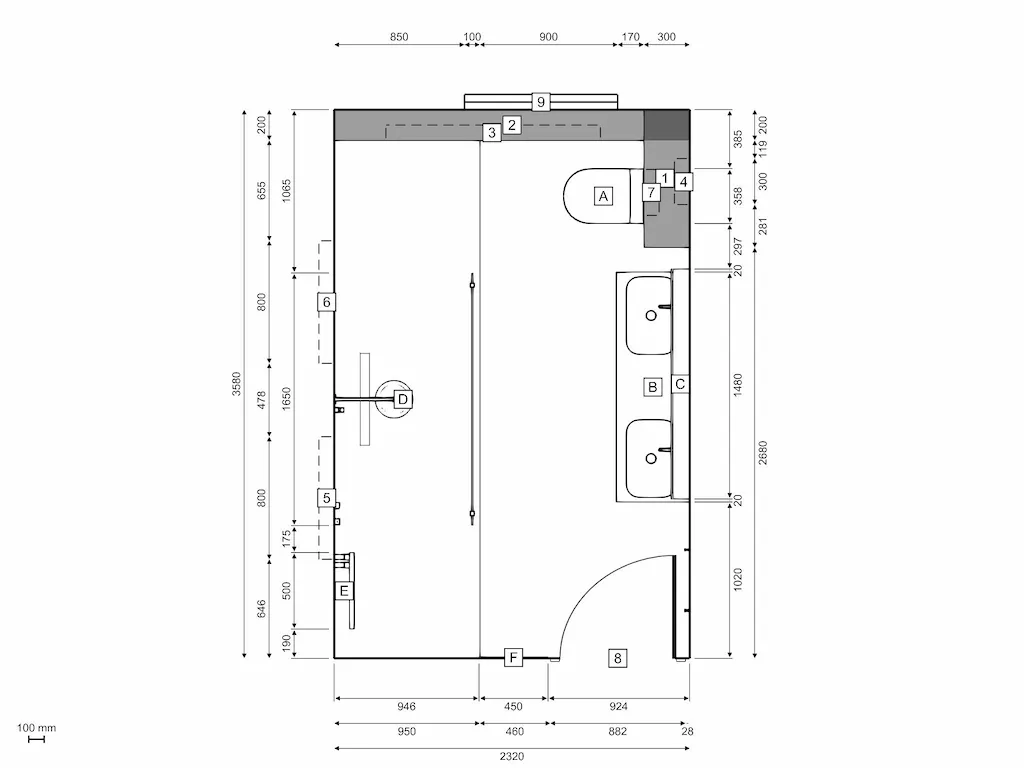
Floorplan

Floor Plan
Walk Through View

3D Design Tour
360° View - A Stylish High-End Master Ensuite
360° Project Photo
After - A Stylish High-End Master Ensuite
AFTER
Before - A Stylish High-End Master Ensuite
BEFORE
Incredibly happy with BathroomsByDesign throughout the process. Our designer Hish provided the inspiration we needed and rapidly turned our ideas into a practical layout. The app which showed the 3D images was great and really allowed you to see how the design would work in real life. The ordering process was largely seamless and we feel that the overall cost represented good value. We chose Protea Homes, one of BBD's recommended fitters, and we couldn't have been happier with Henning and Greg's work. BBD AfterSales and Delivery departments dealt with any questions we had and sorted the small number of issues we experienced. Altogether a really good experience from start to finish and we're so pleased with our bathroom!
Adam Wall - Customer

Similar projects

View related bathroom designs inspired by similar styles, materials, and layouts crafted to deliver both elegance and everyday practicality.

Majestic Marble Family Bathroom

A sleek, modern family bathroom designed to balance aspirational style with mass appeal, perfectly positioned to attract...

Find out more

A Sleek Spa Retreat with Bespoke Steam Enclosure

A breathtaking master bathroom transformation that merges the elegance of a luxury hotel with a restorative spa atmosphe...

Find out more

Relaxing Bathroom Retreat in Berkshire

A gorgeous and modern shower room within the Seven Stars Barn development, where a "clutter-free" philosophy and bespoke...

Find out more

What our customers say

Bathroom Design Consultation

Begin your bathroom design journey

Take the first step toward your dream bathroom with our design experts by your side.

Or call us directly at 020 8619 8899