Playful Family Bathroom in Pink

A vibrant, family-friendly space that masterfully blends practical function with a fresh and lively colour palette.

Budget Range

£7501 - £10000

Project Year

2025

Size

Large (6-10m²)

Location

United Kingdom

Room type

Bathroom

Style

Playful, Contemporary

Client brief

The clients approached us with an open mind, seeking a modern, sleek bathroom that prioritised functionality and a natural flow. The goal was to move away from the "standard" look and create a space that felt uniquely personal and energetic while remaining easy to use for the whole family.

The process

Building a strong rapport was central to this project. Through multiple face-to-face meetings and evolving moodboards, we moved from a blank canvas to a refined design. This collaborative journey allowed us to explore bolder choices, ensuring the clients felt confident in the more expressive elements of the scheme before installation began.

What we did

Vibrant Materiality: Paired playful pink tiles with bronze brassware to create a fun yet sophisticated aesthetic that offers a modern twist on family-friendly design.

Technical Innovation: Engineered a raised floor to discreetly house the plumbing for both the bath and shower, resulting in a smooth, seamless finish throughout the room.

Spatial Efficiency: Selected floating furniture and wall-hung toilets to maximise visible floor space, creating an airy feel and making daily maintenance effortless.

Optimised Flow: Crafted a layout that balances a bold colour story with high-end practicality, ensuring the bathroom remains as functional as it is stylish.
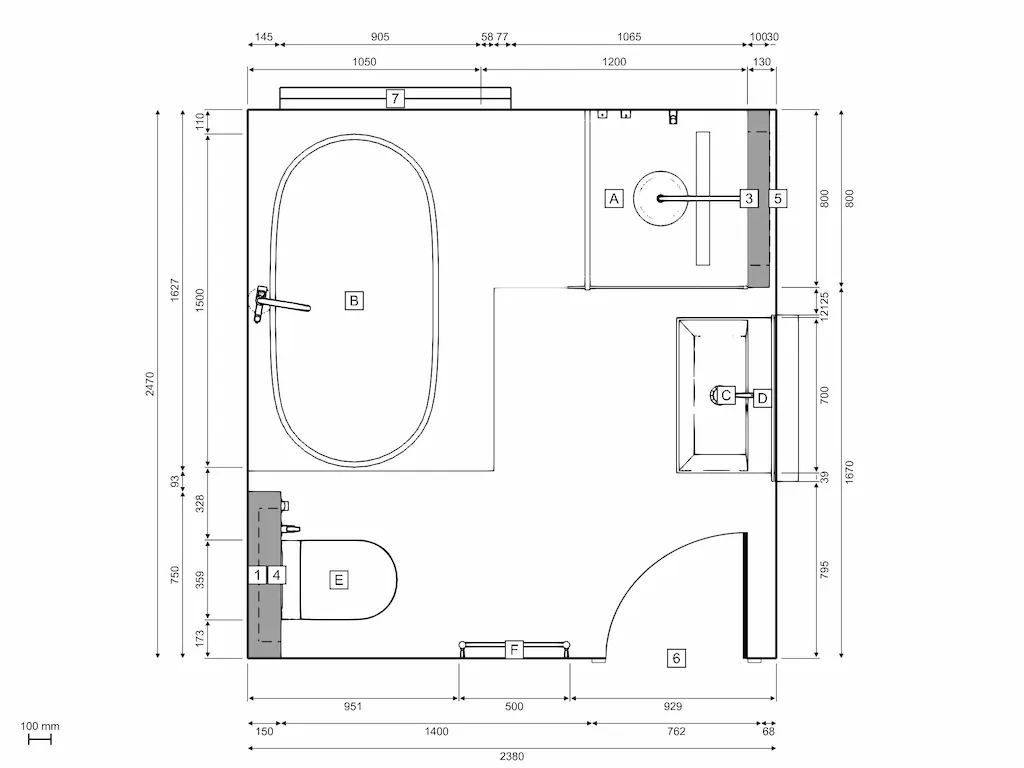
Floorplan

Floor Plan
Walk Through View

3D Design Tour
360° View - Playful Family Bathroom in Pink
360° Project Photo

Similar projects

View related bathroom designs inspired by similar styles, materials, and layouts crafted to deliver both elegance and everyday practicality.

Relaxing Bathroom Retreat in Berkshire

A breathtaking conversion in Berkshire, where "rustic, contemporary brilliance" meets architectural minimalism to create...

Find out more

A Sleek Spa Retreat with Bespoke Steam Enclosure

A breathtaking master bathroom transformation that merges the elegance of a luxury hotel with a restorative spa atmosphe...

Find out more

A Stylish High-End Master Ensuite

A stunning master ensuite makeover that replaces an old, cluttered layout with a fresh, open space. By using dark charco...

Find out more

What our customers say

Bathroom Design Consultation

Begin your bathroom design journey

Take the first step toward your dream bathroom with our design experts by your side.

Or call us directly at 020 8619 8899