Multi-functional Family Bathroom in New Malden

A contemporary and vibrant multi-bathroom renovation in New Malden, designed to serve as a high-energy family hub that balances daily practicality with a stylish, retreat-like atmosphere.

Budget Range

£5001 - £7500

Project Year

2024

Size

Medium (3-6m²)

Location

United Kingdom

Room type

Bathroom

Style

Japandi

Client brief

The vision was to create a fun, functional, and durable family space that could withstand the morning rush while offering a comfortable place to unwind. The client required a "best of both worlds" layout, specifically requesting a spacious walk-in shower alongside a full-sized bath, plus ample storage to keep the busy household organised.

The process

To find the perfect balance between the client's "needs and wants," we conducted a deep-dive into their existing habits, focusing on amplifying what they loved and eliminating previous pain points. Our design team experimented with various layouts and contemporary styles throughout the project's progression, using the client's feedback to pinpoint a final configuration that maximised every square inch of the room’s footprint.

What we did

Dual-Zone Bathing: Specified a versatile layout that incorporates both a deep soaking bath and a spacious walk-in shower to meet the diverse needs of a growing family.

Architectural Glazing: Sourced a modern, grid-style glass partition for the shower to provide an industrial-chic edge while maintaining an open, airy feel.

Storage-First Design: Supplied a sleek, wide-profile vanity unit offering generous counter space and deep drawers to house family essentials.

Light-Enhancing Elements: Integrated a large-scale mirror to amplify natural light and enhance the perceived depth of the room.

Durable Materiality: Curated a selection of contemporary finishes and fixtures chosen specifically for their longevity and ease of maintenance in a high-traffic family home.
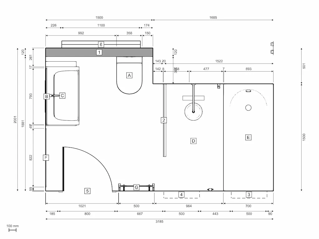
Floorplan

Floor Plan

Similar projects

View related bathroom designs inspired by similar styles, materials, and layouts crafted to deliver both elegance and everyday practicality.

A Sleek Spa Retreat with Bespoke Steam Enclosure

A breathtaking master bathroom transformation that merges the elegance of a luxury hotel with a restorative spa atmosphe...

Find out more

A Stylish High-End Master Ensuite

A stunning master ensuite makeover that replaces an old, cluttered layout with a fresh, open space. By using dark charco...

Find out more

Relaxing Bathroom Retreat in Berkshire

A gorgeous and modern shower room within the Seven Stars Barn development, where a "clutter-free" philosophy and bespoke...

Find out more

What our customers say

Bathroom Design Consultation

Begin your bathroom design journey

Take the first step toward your dream bathroom with our design experts by your side.

Or call us directly at 020 8619 8899