Two Stylish Bathrooms In South East London

A tranquil South East London sanctuary that masterfully blends an earthy, organic palette with subtle pink tones and luxurious brushed brass accents.

Budget Range

£7501 - £10000

Project Year

2024

Size

Large (6-10m²)

Location

United Kingdom

Room type

Bathroom

Style

Mid-Century Modern, Luxury

Client brief

The client envisioned a high-end retreat that prioritised tranquility and a unique colour story. The brief called for a "spa-at-home" experience, specifically requesting the inclusion of a freestanding bath and a spacious walk-in shower. Visually, the goal was to harmonise earthy, grounded tones with a "touch of pink" and the warmth of brushed brass for a sophisticated, contemporary finish.

The process

Working closely with our Fulham Showroom Manager, Nina Dhanani, the design was developed through an iterative 3D modelling process. Our in-house technology allowed the client to explore various layout configurations and colour balances in real-time. This was particularly effective in fine-tuning the exact shade of pink and the placement of the wooden elements to ensure the final atmosphere felt balanced and serene rather than overwhelming.

What we did

Luxe 4-Piece Specification: Designed a layout that accommodates both a sculptural freestanding bath and a generous walk-in shower, fulfilling the client’s core functional requirements.

Warm Materiality: Sourced a wooden vanity unit to introduce natural texture, providing an organic anchor for the room’s earthy colour scheme.

Refined Hardware: Specified brushed brass AVA tapware throughout the space, chosen specifically to elevate the palette and provide a soft, elegant metallic contrast.

Tonal Balancing: Carefully integrated pink accents within a neutral, earthy framework to create a space that feels fresh, modern, and uniquely personal.

3D Design Optimisation: Utilised advanced visualisation to ensure the "tranquil" vision translated into a practical reality, making quick refinements to product selections to achieve the perfect aesthetic flow.
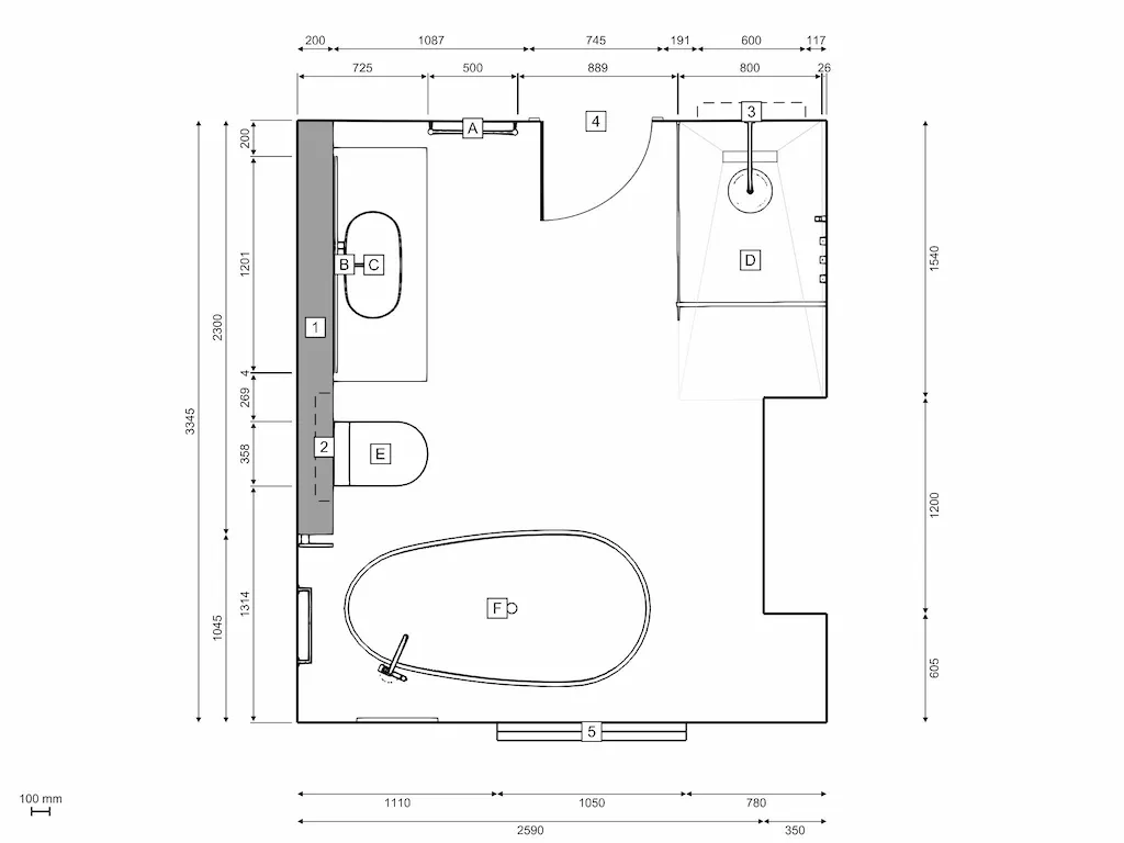
Floorplan

Floor Plan
Walk Through View

3D Design Tour

Similar projects

View related bathroom designs inspired by similar styles, materials, and layouts crafted to deliver both elegance and everyday practicality.

High-End Family Bathroom in Morden

A sophisticated transformation of a standard mid-terrace bathroom into a comprehensive 4-piece suite, balancing family d...

Find out more

Modern Multifunctional Bathroom In Brixton

A modern bathroom designed to maximise space without compromise, successfully integrating a separate bath and shower int...

Find out more

Contemporary Family Bathroom in North West London

A sleek, contemporary main bathroom in North West London that serves as the centrepiece of a triple-bathroom renovation,...

Find out more

What our customers say

Bathroom Design Consultation

Begin your bathroom design journey

Take the first step toward your dream bathroom with our design experts by your side.

Or call us directly at 020 8619 8899