Navy Marble Combination Bathroom in Richmond

A light, bright, and effortlessly stylish sanctuary that blends contemporary lines with inviting warmth to maximise the room’s natural light.

Budget Range

£10001 - £12500

Project Year

2025

Size

Large (6-10m²)

Location

United Kingdom

Room type

Bathroom

Style

Playful, Contemporary

Client brief

The client sought a fresh, airy atmosphere that felt both practical and striking. Maintaining an easy-going and open-minded approach, they tasked us with creating a layout that enhanced the room's sense of space while incorporating bold textures and high-quality finishes.

The process

The collaborative nature of this project allowed our design team to propose creative alternatives that the client hadn't initially considered. We focused on "light-mapping", positioning reflective surfaces and specific tile contrasts to ensure the bathroom felt spacious and energised, ultimately delivering a final design that surpassed the client's original expectations.

What we did

Vibrant Contrast: Paired stunning blue subway tiles in the shower with white marble floor tiles to create a fresh, Mediterranean-inspired aesthetic.

Light Amplification: Selected a 3-door Faeber Edge mirror cabinet to reflect natural light and add significant visual depth to the room.

Seamless Integration: Utilised a premium Kaldewei Bath, expertly encased with tiles that match the floor for a cohesive, "built-in" luxury feel.

Contemporary Craftsmanship: Selected a Vanity Hall Inframe Vanity unit for its crisp, traditional lines, finishing the look with modern AVA Trend stainless steel tapware.

Spatial Optimisation: Engineered a layout that prioritised an open, airy feel, successfully turning a standard room into a bright and spacious retreat.
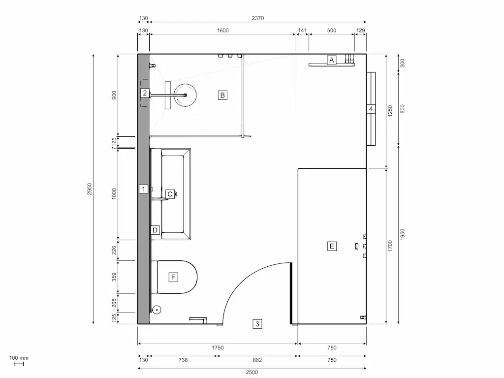
Floorplan

Floor Plan
Walk Through View

3D Design Tour
360° View - Navy Marble Combination Bathroom in Richmond
360° Project Photo

Similar projects

View related bathroom designs inspired by similar styles, materials, and layouts crafted to deliver both elegance and everyday practicality.

Beautiful Bathroom Suites in Brixton

A high-specification main bathroom in Brixton, serving as the luxurious centrepiece of a full Victorian house refurbishm...

Find out more

Elegant Family Bathroom in Wandsworth

A blissful and "trend-led" family bathroom in Wandsworth, designed to be a light-filled, functional hub that balances co...

Find out more

Opulent Bathroom Suite in Virginia Water

A hidden sanctuary in Virginia Water that blends popular high-end trends with ingenious spatial planning, featuring a se...

Find out more

What our customers say

Bathroom Design Consultation

Begin your bathroom design journey

Take the first step toward your dream bathroom with our design experts by your side.

Or call us directly at 020 8619 8899