Industrial inspired bathroom in Teddington

An industrial-inspired loft bathroom designed to balance bold, modern aesthetics with a welcoming feel, carefully specified to navigate the challenges of varying wall and ceiling heights.

Budget Range

£5001 - £7500

Project Year

2024

Size

Medium (3-6m²)

Location

United Kingdom

Room type

Bathroom

Style

Contemporary, Playful

Client brief

The clients approached us with a "vague vision" and only rough measurements for their new loft space. They desired a modern industrial look but were unsure how to accommodate a full suite within the restrictive ceiling heights. The priority was to create a bathroom that felt stylish and architectural without being overpowering or cramped.

The process

Through just two consultations, we guided the clients from a blank canvas to a fully realised design using expert spatial planning. We focused on "height-mapping", strategically placing fixtures to align with the varying roof pitches. By sharing deep technical knowledge on how each product functions within a loft environment, we helped the client reconsider their layout to maximise every inch of usable space.

What we did

Industrial Specification: Sourced Crittall-style glass by Eastbrook and black AVA tapware to anchor the design in a sharp, modern industrial aesthetic.

Warm Materiality: Balanced the metal and glass elements with warm wood-effect tiling from European Tiles to ensure the space felt inviting rather than cold.

Low-Ceiling Solutions: Specified a bath screen at a custom-calculated length and utilised wall-hung Faeber basins and toilets to keep the floor clear and the sightlines open.

Cohesive Hardware: Integrated a black AVA ladder radiator, serving as both a practical heating solution and a key design feature that ties the industrial theme together.

Architectural Integration: Developed a layout that turned the unique loft "niches" into functional zones, ensuring the final design felt like a tailored extension of the home.
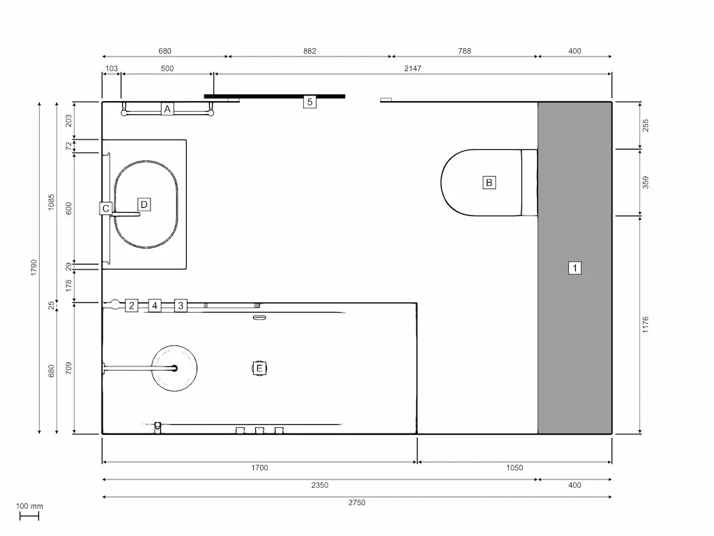
Floorplan

Floor Plan
Walk Through View

3D Design Tour
360° View - Industrial inspired bathroom in Teddington
360° Project Photo
We were recommended this place by a friend, and we couldn’t have asked for a better experience! We were unsure where to begin or how we wanted our new loft bathroom to look (and only had rough measurements to hand), In just two meetings, Jacob expertly guided us through the entire process, designing a bathroom from scratch that we absolutely love! He helped us reconsider what the space could accommodate, suggested the ideal placement for everything, and had brilliant advice on tiling, What also impressed both my husband and me was how well Jacob understood our vague vision of a dream bathroom and brought it to life, all while caring about our needs and ensuring the best possible results, He also had such a deep knowledge of all the associated details—how everything works, what we might need, and clever space planning with varying wall heights, MANY THANKS !!
Anna Sokolova - Customer

Similar projects

View related bathroom designs inspired by similar styles, materials, and layouts crafted to deliver both elegance and everyday practicality.

Compact Bathroom with Bold Personality

A high-end, colourful bathroom packed with storage and individuality, proving that a compact footprint can still deliver...

Find out more

Family Bathroom with Individuality & Style in Hanwell

A unique family bathroom in Hanwell that masterfully blends contemporary flair with classic elegance to create a space f...

Find out more

Bespoke Bathroom Designs in Twickenham

A clean, contemporary family bathroom in Twickenham that serves as a masterclass in custom design, utilising large-scale...

Find out more

What our customers say

Bathroom Design Consultation

Begin your bathroom design journey

Take the first step toward your dream bathroom with our design experts by your side.

Or call us directly at 020 8619 8899