Brilliant Brass In Westminster Flat

A warm, neutral Westminster bathroom that masterfully blends stone-effect textures with bespoke cabinetry to create a seamless, elegant sanctuary within a London flat.

Budget Range

£5001 - £7500

Project Year

2024

Size

Medium (3-6m²)

Location

United Kingdom

Room type

Bathroom

Style

Modern, Luxury

Client brief

The client sought a sophisticated, stone-inspired palette punctuated by a classic marble dado rail. Maintaining a strict budget was a key priority, alongside the need for a design that worked within the existing layout of their Westminster flat to ensure a straightforward and cost-effective renovation.

The process

To accommodate the client’s busy schedule, we collaborated through a mix of showroom visits and video consultations. By retaining the original plumbing positions, we focused the budget on high-impact materials. Our designer provided expert guidance on product selection, ensuring that every piece, from the tiles to the brassware, balanced premium quality with long-term cost-efficiency.

What we did

Bespoke Tonal Matching: Specified a custom-coloured Vanity Hall basin and vanity unit, precisely matched to the stone-effect European Tiles for a perfectly seamless colour palette.

Luxury Detailing: Integrated a marble dado rail to provide a touch of timeless elegance and architectural interest against the neutral stone backdrop.

Cohesive Metalwork: Sourced a brushed brass Oli flush plate to pair perfectly with the AVA brassware, ensuring a consistent and warm metallic theme throughout.

High-Performance Supply: Specified a durable Kaldewei bath, chosen for its longevity and sleek integration into the stone-effect surroundings.

Strategic Specification: Curated a selection of products from Vanity Hall, European Tiles, and Oli that delivered a bespoke, high-end look while strictly adhering to the client's budgetary limits.
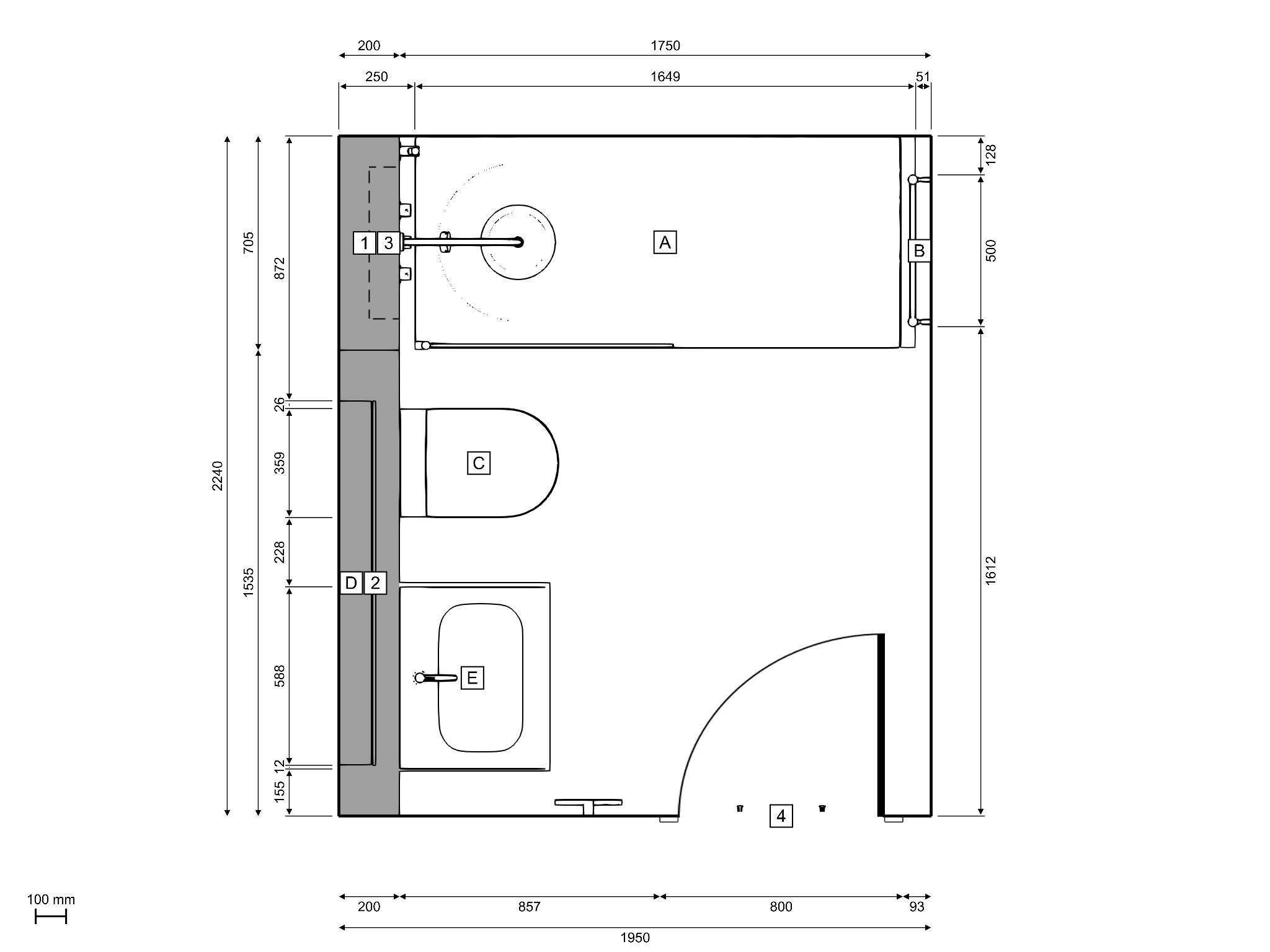
Floorplan

Floor Plan
Walk Through View

3D Design Tour
360° View - Brilliant Brass In Westminster Flat
360° Project Photo

Similar projects

View related bathroom designs inspired by similar styles, materials, and layouts crafted to deliver both elegance and everyday practicality.

A 1930s-Inspired Main Bathroom with a Modern Twist

A stylish main bathroom that masterfully blends the contemporary aesthetic of a modern home with the heritage-inspired c...

Find out more

Emerald green retreat in Hanwell

A contemporary family bathroom that masterfully balances modern sophistication with a bold emerald green focal point, de...

Find out more

Bespoke Bathroom Designs in Twickenham

A clean, contemporary family bathroom in Twickenham that serves as a masterclass in custom design, utilising large-scale...

Find out more

What our customers say

Bathroom Design Consultation

Begin your bathroom design journey

Take the first step toward your dream bathroom with our design experts by your side.

Or call us directly at 020 8619 8899