Bold Shower Room in a Compact Space

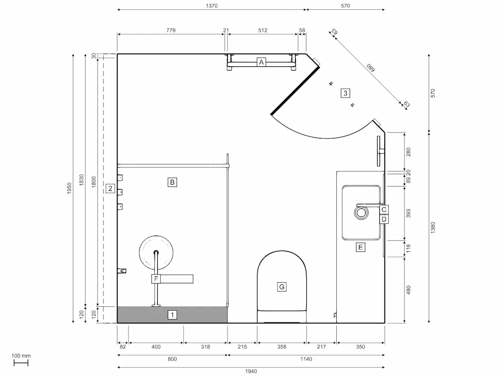
Design Goal: - Maximise function and aesthetic impact in a tight footprint, with a strong emphasis on materiality and layout. Key Features: - Walk-in shower with fluted glass screen for a modern, tex...

Design Goal:
- Maximise function and aesthetic impact in a tight footprint, with a strong emphasis on materiality and layout.

Key Features:
- Walk-in shower with fluted glass screen for a modern, textured touch and open-plan feel.
- Feature bottle green tiles create a striking contrast against stone-effect neutral tiles, blending bold colour with natural texture.
- AVA brushed brass brassware offers an elegant, muted tone, adding warmth without overpowering the palette.
- Faeber bespoke basin and vanity unit in a concrete finish with walnut drawers, tailored for the space to offer generous counter surface and slimline depth.
- Wall-hung Faeber toilet maximises floor space and enhances the feeling of openness in a narrow layout.
- London Showers walk-in screen delivers minimal, architectural lines for a clean finish.

Client Vision:
- Design-savvy and detail-focused, the client had a clear vision and strong preferences for material choices and layout. Functionality was just as important as the visual impact.

Process:
- The client visited our showroom for a design consultation, where we refined layout options to suit the tight space. Storage, symmetry, and usability were key talking points throughout the process.
- Careful planning allowed us to accommodate a full vanity unit with usable counter space and storage, while still maintaining clear circulation around the loo and shower.

Outcome:
- A compact yet considered shower room that delivers on both aesthetic and function. The space feels clean, modern and personal, exactly as envisioned.
- The client was delighted with the final result.
Bold Shower Room in a Compact Space

Budget Range

£5001 - £7500

Project Year

2025

Location

United Kingdom

Room type

Dedicated shower room

Style

Contemporary

3D View

Step into an interactive 3D View

Lorem ipsum dolor sit amet, consectetur adipiscing elit. Suspendisse varius enim in eros elementum tristique. Duis cursus, mi quis.

Similar projects

Lorem ipsum dolor sit amet, consectetur adipiscing elit. Suspendisse varius enim in eros elementum tristique. Duis cursus, mi quis.

Bold Shower Room in a Compact Space

Bold Shower Room in a Compact Space

Design Goal: - Maximise function and aesthetic impact in a tight footprint, with a strong emphasis on materiality and la...

Find out more
Navy Marble Combination Bathroom in Richmond

Navy Marble Combination Bathroom in Richmond

Design Goal: Light, bright, and effortlessly stylish, blending contemporary lines with inviting warmth. Key Features:...

Find out more
Playful Family Bathroom in Pink

Playful Family Bathroom in Pink

Design Goal: Blend practical function with a fresh, lively colour palette. Key Features: - Pink tiles for a fun, family...

Find out more

What our customers say

Bathroom Design Consultation

Begin your bathroom design journey

Take the first step toward your dream bathroom with our design experts by your side.

Or call us directly at 020 8619 8899